Zorgflats

Zorgflats

Tien zorgflats bieden een thuis aan zowel koppels als alleenstaanden. Is één van beiden zorgbehoevend en is het moeilijk om nog voor deze partner te zorgen? Dan kunnen jullie toch nog samen blijven wonen, want wij voorzien alle gewenste zorg en ondersteuning. Bovendien hebben jullie de klok rond toegang tot alle mogelijkheden en diensten van het woonzorgcentrum.

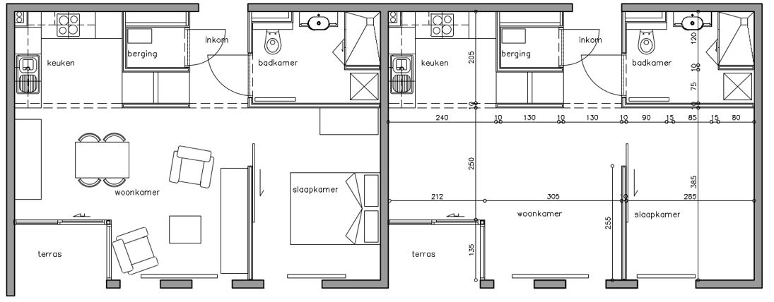
Elke zorgflat beschikt over een gezellige woonruimte, een ingerichte keuken, slaapkamer en badkamer met toegankelijke douche. De keuken heeft alles wat nodig is: een elektrische kookplaat, koelkast, spoeltafel, dampkap, werk- en bergruimte en de nodige aansluitingspunten voor toestellen. Naast de flat is er een kelderbergruimte van minimum 4,5 m² waar makkelijk grotere voorraden of ander materiaal kunnen opgeborgen worden. Er is ook een gemeenschappelijke fietsenberging ter beschikking.
Een oproepsysteem voor heel de zorgflat biedt hulp bij noodgevallen.  Een eigen terras en voldoende zonlicht maken van de flats een fijne plek om te wonen.

 

Inschrijven

Keuken
Living
Grondplan
Zitgedeelte

dienstverlening

In onze zorgflats bieden wij de voordelen van een assistentiewoning én van een woonzorgcentrum: een ruime aangename flat voorzien van een oproepsysteem gecombineerd met de dienstverlening van een woonzorgcentrum.

De zorgmedewerkers komen bij jullie langs, van één keer per dag tot zoveel als nodig is volgens de zorgbehoefte. Wij voorzien dagelijks drie lekkere, in huis bereide, maaltijden. Voor de schoonmaak van de flat kunnen jullie rekenen op de medewerkers van het poetsteam.
Daarnaast is er het aanbod van activiteiten. Deze worden zorgvuldig geselecteerd, ze hebben immers een betekenisvolle plaats in het dagelijks leven. Tegelijkertijd scheppen activiteiten kansen tot sociaal contact. Jullie kunnen elkaar spontaan ontmoeten in de ontmoetingsruimte.

Onze medewerkers maken tijd voor jullie noden en vragen, samen zoeken wij een gepaste oplossing.

Veelgestelde vragen

Hoeveel is de dagprijs?

  • € 96,85 zorgflat 1 persoon
  • € 78,50 zorgflat 2 personen, dit is de prijs per persoon

Hoeveel bedraagt de huurwaarborg?

De waarborg werkt volgens hetzelfde principe als voor een hoofdverblijfplaats (dus via een geblokkeerde huurwaarborgrekening). Het bedrag is beperkt tot 30 x de dagprijs.
Indien er geen schade aan de flat is wordt de waarborg bij het beëindigen van de overeenkomst terugbetaald.

Wat is er wel/niet inbegrepen in de dagprijs?

Inbegrepen

  • Huur flat incl water, gas, elektriciteit
  • Gedeeltelijke inrichting en uitrusting van de flat
  • Schoonmaak en technisch onderhoud van de flat
  • Het gebruik en de was van bad- en bedlinnen
  • Het onderhoud van gemeenschappelijke ruimten en liften
  • De collectieve verzekeringen burgerlijke aansprakelijkheid en de brandverzekering
  • De brandverzekering van persoonlijke inboedel
  • Verzorgde maaltijden
  • Aanbod dranken bij maaltijden en op de flat. Koffie en thee in de cafetaria
  • Dieetadvies en opvolging
  • Animatie en ontspanningsactiviteiten
  • Ergotherapie
  • Verpleegkundige zorgen
  • Incontinentiemateriaal
  • Basispakket toiletartikelen
  • Aansluiting digitale televisie en draadloos internet

Niet inbegrepen
Voorschotten ten gunste van derden*

  • Opleg huisarts/ externe verstrekkers van zorg zoals bv. opleg consultatie specialisten, Gerodent,…
  • Persoonlijke was
  • Medicatie
  • Pedicure/manicure
  • Lichte en dadelijke opneembare voeding ten belope van de meerkost van een gewone maaltijd.
  • Persoonlijke toiletartikelen die op uitdrukkelijke vraag van de bewoner door de voorziening worden aangekocht via de apotheek.
  • Alle persoonlijke aankopen op uitdrukkelijke vraag van de bewoner, andere dan toiletartikelen.

Niet inbegrepen

  • Ziekenvervoer
  • Ziekenhuiskosten
  • Labo
  • Mutualiteitsbijdrage
  • Staanplaats voor een wagen
  • ...

*Dit zijn uitgaven die door de voorziening betaald worden op naam van de bewoner en die voor hetzelfde bedrag gefactureerd worden op de verblijfsfactuur

Wie kan er terecht in de zorgflats?

Iedereen die minstens 65 jaar oud is maar extra hulp en ondersteuning nodig heeft. Bij de huisarts kan je de nodige documenten opvragen, bv. de KATZ-schaal, een diagnostisch bilan, ...

Wat zijn de bezoekuren?

De bewoner kan om het even welk moment bezoek ontvangen.
De bewoners zijn ook vrij om gelijk wanneer de zorgflat te verlaten om bijvoorbeeld zelf iemand te bezoeken, boodschappen te doen.

Mag een bewoner zijn/haar eigen spullen meebrengen?

Elke flat is uitgerust met een keuken, badkamer en woonkamer. Videofonie, een oproepsysteem voor als je hulp nodig hebt en branddetectie zijn standaard in elke flat. Je persoonlijke meubels breng je gewoon mee! Elke slaapkamer is voorzien van zorgmeubilair.

Welke administratieve zaken heb je nodig bij opname?

Bij het ondertekenen van de woonovereenkomst (het contract) worden deze zaken toegelicht. Een identiteitskaart met pincode en een klever van je mutualiteit is van belang.

Wat met de aankoop en beheer van medicatie?

Een zorgflat dient te voldoen aan de regelgeving van een woonzorgkamer. Dat betekent dat medicatiebeheer onder de verantwoordelijkheid valt van de voorziening.
Medicatie wordt enkel klaargezet en toegediend op voorschrift van de huisarts. De toelevering gebeurt dagelijks via een externe apotheek.

Wat met cashgeld en waardevolle spullen?

Het woonzorgcentrum is een open huis waar bezoekers steeds welkom zijn. Dit brengt jammer genoeg met zich mee dat ook personen met minder goede bedoelingen vrij het gebouw in en uit kunnen. Hoewel er heel wat sociale controle is en veel bezoekers door de medewerkers worden opgemerkt, is diefstal niet uit te sluiten. Daarom adviseren wij om geen grote sommen geld of waardevolle juwelen bij te houden in je flat.

Hoe verloopt een inschrijving?

Dit kan op afspraak aangevraagd worden tijdens de kantooruren. Via het contactformulier op deze website, per e-mail, telefonisch of via Woonzorgweb .
Wij vinden het belangrijk om vooraf een oriënterend gesprek te voeren zodat de motivatie en de verwachtingen van de oudere in lijn ligt met onze zorgverlening. In het belang van de toekomstige bewoner worden een aantal medische gegevens opgevraagd.

Zijn huisdieren welkom?

Het houden van kleine huisdieren (vogel, hond, kat, …) is toegelaten, voor zover ze geen overlast veroorzaken en de bewoner en/of zijn bezoekers kunnen instaan voor het hygiënisch onderhoud. 
Bezoekers mogen een huisdier meebrengen op bezoek zolang deze niet voor overlast zorgen.

op het menu

op het menu - 't Ponton Squatina

Contacteer ons - inschrijven

Wil je graag meer weten over onze woonzorgkamers, zorgflats of assistentiewoningen? Het onthaal van Haerlebout & Duinroos helpt je graag verder. Je kan steeds vooraf kennismaken met de voorzieningen, accommodaties, werknemers en de bewoners. Wij vinden het belangrijk om vooraf een oriënterend gesprek te voeren zodat de motivatie en de verwachtingen van de oudere in lijn ligt met onze zorgverlening. In het belang van de toekomstige bewoner worden een aantal medische gegevens opgevraagd.

contact

inschrijven

Wat is't plan?

🗣️ Wat is ’t plan, mevrouw de minister?

💙 Duidelijkheid in zorg begint bij ons allemaal.
Samen vragen wij — met respect en verbondenheid — om een helder plan voor de toekomst van onze zorg.
Zodat Squatina een warme, nabije en kwaliteitsvolle plek blijft.

❓ ᴡᴀᴛ ɪꜱ ’ᴛ ᴘʟᴀɴ?
Onze ouderen verdienen duidelijkheid.
Omdat ook wij merken dat het voor ons nog niet helemaal duidelijk is wat de toekomstvisie van de overheid voor ouderenzorg precies inhoudt, ondertekenden wij deze oproep.
Wij willen graag meedenken en samen zoeken naar oplossingen, maar daarvoor zijn keuzes, middelen en wederzijds vertrouwen nodig.

✍️ Teken jij ook de petitie?
💻 Online tekenen: https://lnkd.in/eqX3KgmZ

#watistplan #ouderenzorg #squatina

lees meer alle berichten

adl Cluster & VTI Oostende vieren inspirerende samenwerking

adl Cluster en VTI Oostende kijken trots terug op een prachtig traject van samenwerking dat een mooie transformatie heeft gebracht in het ADL Cluster Oostende. Deze gezamenlijke inspanning benadrukt het belang van inclusie, maatschappelijke betrokkenheid en levensvreugde in het hart van onze badstad.

lees meer alle berichten