sfeer

Assistentiewoningen Duinroos

Er zijn 22 assistentiewoningen waar zowel alleenstaanden als koppels zelfstandig kunnen wonen. Zorg wordt op vraag aangeboden maar is niet continu aanwezig. Crisis- en overbruggingszorg wordt opgevangen door de zorgmedewerkers van het aanpalend woonzorgcentrum Haerlebout.

Er kan in alle privacy een beroep gedaan worden op externe dienstverlening. Bovendien kies je zelf wat je nodig hebt en welke zorg je wenst.

Crisiszorg is de zorg die onmiddellijk moet worden geboden in geval van een noodsituatie en die dus niet vooraf kon worden ingeschat.
Overbruggingszorg
noemt men de aangepaste zorg die veelal aansluit op de crisiszorg en die een korte periode overbrugt in afwachting dat de zorg kan verleend worden die de bewoner zelf kiest.

Zitgedeelte
Keuken
Living
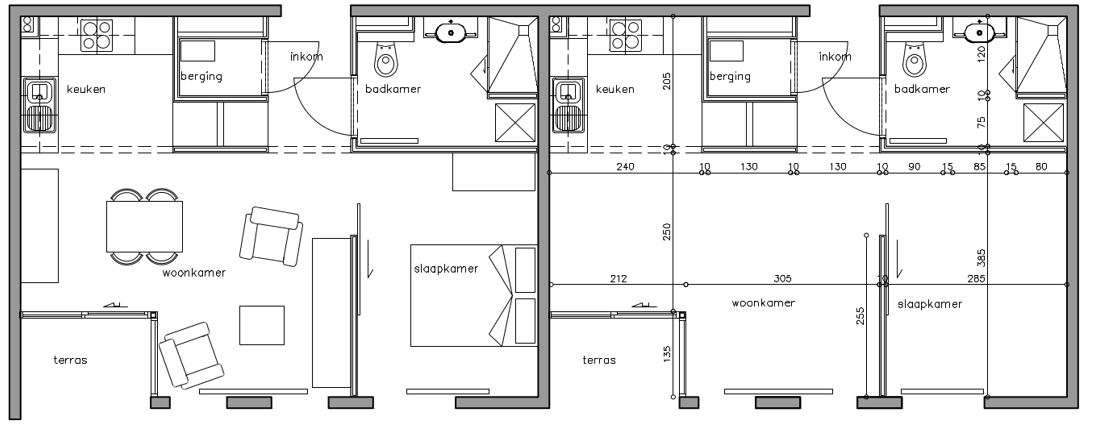
Plattegrond Duinroos

de flat

De ouderen vertoeven in een gezellige woonruimte en hebben een ingerichte keuken, slaapkamer en badkamer met toegankelijke douche ter beschikking. Een eigen terras en voldoende zonlicht maken van de flats een fijne plek om te wonen.

De keuken heeft alles wat nodig is: een elektrische kookplaat, koelkast, spoeltafel, dampkap, werk- en bergruimte en de nodige aansluitingspunten voor toestellen. Naast de flat is er een kelderbergruimte van minimum 4,5 m² waar makkelijk grotere voorraden of ander materiaal kunnen opgeborgen worden. Er is ook een gemeenschappelijke fietsenberging ter beschikking. Een oproepsysteem in de assistentiewoning biedt hulp bij noodgevallen. Ten slotte is er de mogelijkheid om een staanplaats voor de wagen te huren. 

Veelgestelde vragen

Wat is het verschil tussen een erkende assistentiewoning en een serviceflat?

Een erkende assistentiewoning is de opvolger van een serviceflat. Het is een toegankelijke, comfortabele woonst die volledig voldoet aan de wetgeving die de overheid heeft opgesteld. Ze zijn volledig ingericht op maat van ouderen zodat die zo lang mogelijk zelfstandig kunnen wonen. De woningen moeten aan bepaalde kwaliteitseisen voldoen, volgende essentiële kenmerken dienen aanwezig zijn: de flats moeten toegankelijk zijn voor rolstoelen. Er moet een alarmsysteem (oproepsysteem), een sociale ontmoetingsruimte en een woonassistent aanwezig zijn. Ook moeten bewoners inspraak krijgen via de gebruikersraad.

Hoeveel is de dagprijs?

De prijs is € 46,36 per dag

De dagprijs betreft de woning daarom vragen wij geen bijkomende vergoeding voor een extra bewoner.

Hoeveel bedraagt de huurwaarborg?

De waarborg werkt volgens hetzelfde principe als voor een hoofdverblijfplaats (dus via een geblokkeerde huurwaarborgrekening). Het bedrag is beperkt tot 30 x de dagprijs.
Indien er geen schade aan de flat is wordt de waarborg bij het beëindigen van de overeenkomst terugbetaald.

Wat is er wel/niet inbegrepen in de dagprijs?

Zijn inbegrepen in de prijs:

  • De huur van de flat
  • Aansluiting digitale televisie en draadloos internet
  • Het onderhoud van gemeenschappelijke ruimten en liften
  • Het onderhoud van de gemeenschappelijke tuin
  • 24/7 permanentie van geschoold personeel voor het beantwoorden van de noodoproepen
  • De collectieve verzekeringen burgerlijke aansprakelijkheid en de brandverzekering
  • De brandverzekering van persoonlijke inboedel
  • Het gebruik van de gemeenschappelijke fietsenstalling
  • Het gebruik van de videofoon
  • De kosten voor het ophalen van het huisvuil
  • De onroerende voorheffing
  • Bemiddeling en coördinatie met thuiszorgdiensten

Niet inbegrepen:

  • Maaltijden
  • Telefonie
  • Elektriciteit /gas/water
  • Schoonmaak en technisch onderhoud van de flat
  • Staanplaats voor de wagen
  • De persoonlijke bijdrage in de thuiszorgdiensten
  • De persoonlijke belastingen

Wat zijn de bezoekuren?

De bewoner kan om het even welk moment bezoek ontvangen.
De bewoners zijn ook vrij om gelijk wanneer de assistentiewoning te verlaten om bijvoorbeeld zelf iemand te bezoeken, boodschappen te doen of met vakantie te gaan.

Mag een bewoner zijn/haar eigen spullen meebrengen?

Elke flat is uitgerust met een keuken, badkamer en woonkamer.  Videofonie, een oproepsysteem voor als je hulp nodig hebt en branddetectie zijn standaard in elke flat. Voor de inrichting van je flat kies je zelf. Je persoonlijke meubels breng je dus gewoon mee!

Welke administratieve zaken heb je nodig bij opname?

Bij het ondertekenen van de woonovereenkomst (het contract) worden deze zaken toegelicht. Een identiteitskaart met pincode en een klever van je mutualiteit is van belang.

Wie kan er terecht in de assistentiewoningen?

Iedereen die minstens 65 jaar oud is, die zelfstandig wil en kan wonen en leven, maar in de (al dan niet nabije) toekomst mogelijk wat extra hulp en ondersteuning zal kunnen gebruiken. Een erkende groep van assistentiewoningen kan voor maximaal 25 procent van deze leeftijdsgrens afwijken.
Ben jij bijvoorbeeld 65 en is jouw partner jonger, dan vormt dat geen probleem.​ Als je jonger bent maar door een beperking ben je gebaat bij een verblijf in een assistentiewoning, dan kan dat ook.

Hoe verloopt een inschrijving?

Dit kan op afspraak aangevraagd worden tijdens de kantooruren. Via het contactformulier op deze website, per e-mail, telefonisch of via Woonzorgweb .

Zijn huisdieren welkom?

Het houden van kleine huisdieren (vogel, hond, kat, …) is toegelaten, voor zover ze geen overlast veroorzaken en de bewoner en/of zijn bezoekers kunnen instaan voor het hygiënisch onderhoud. 
Bezoekers mogen een huisdier meebrengen op bezoek zolang deze niet voor overlast zorgen.

op het menu

op het menu - 't Ponton Squatina

Contacteer ons - inschrijven

Wil je graag meer weten over onze woonzorgkamers, zorgflats of assistentiewoningen? Wij helpen je graag verder na het maken van een afspraak. Bij een rondleiding beantwoorden wij al je vragen en kan je kennismaken met de medewerkers en bewoners. Wij vinden het belangrijk om vooraf een oriënterend gesprek te voeren zodat de motivatie en de verwachtingen van de oudere in lijn liggen met onze zorgverlening. 

contact

inschrijven

Wat is't plan?

🗣️ Wat is ’t plan, mevrouw de minister?

💙 Duidelijkheid in zorg begint bij ons allemaal.
Samen vragen wij — met respect en verbondenheid — om een helder plan voor de toekomst van onze zorg.
Zodat Squatina een warme, nabije en kwaliteitsvolle plek blijft.

❓ ᴡᴀᴛ ɪꜱ ’ᴛ ᴘʟᴀɴ?
Onze ouderen verdienen duidelijkheid.
Omdat ook wij merken dat het voor ons nog niet helemaal duidelijk is wat de toekomstvisie van de overheid voor ouderenzorg precies inhoudt, ondertekenden wij deze oproep.
Wij willen graag meedenken en samen zoeken naar oplossingen, maar daarvoor zijn keuzes, middelen en wederzijds vertrouwen nodig.

✍️ Teken jij ook de petitie?
💻 Online tekenen: https://lnkd.in/eqX3KgmZ

#watistplan #ouderenzorg #squatina

lees meer alle berichten

adl Cluster & VTI Oostende vieren inspirerende samenwerking

adl Cluster en VTI Oostende kijken trots terug op een prachtig traject van samenwerking dat een mooie transformatie heeft gebracht in het ADL Cluster Oostende. Deze gezamenlijke inspanning benadrukt het belang van inclusie, maatschappelijke betrokkenheid en levensvreugde in het hart van onze badstad.

lees meer alle berichten